Instagram
Altersresidenz Falkenstein, Menziken Altersresidenz Falkenstein, Menziken

Altersresidenz Falkenstein, Menziken

Fertigstellung 2017
Wettbewerb, 1. Rang, 2014
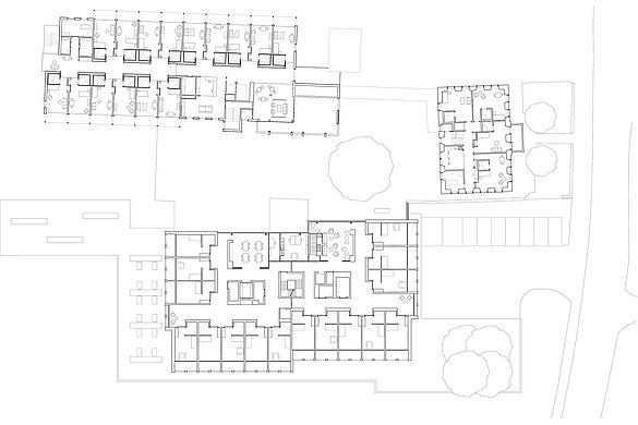
Erweiterungsbau mit 32 Pflegezimmern, Restaurant, Tagesstätte für Senioren, Administration.
Spitalverein Wynen- und Seetal, Menziken
Landschaftsarchitektur: David Bosshard, Bern

Der Erweiterungsbau ergänzt die ehemalige Fabrikantenvilla und einen später hinzugekommenen Zimmertrakt zu einem Ensemble mit vielfältigen Aussenräumen. Das Sockelgeschoss aus gestocktem Beton bildet eine umlaufende Gartenterrasse vor dem verglasten Eingangsgeschoss. Als vielseitig bespielbares Raumkontinuum wird dieses zum Mittelpunkt der Altersresidenz. Der auf das Eingangsgeschoss aufgesetzte Kubus mit den Pflegestationen besteht - passend zur Putzfassade der Villa - aus gelblichem Kalkbeton.

Altersresidenz Falkenstein, Menziken
Altersresidenz Falkenstein, Menziken
Altersresidenz Falkenstein, Menziken
Altersresidenz Falkenstein, Menziken
Altersresidenz Falkenstein, Menziken
Altersresidenz Falkenstein, Menziken Altersresidenz Falkenstein, Menziken