Instagram
Hotel Aarauerhof, Aarau

Hotel Aarauerhof, Aarau

Studienauftrag 2. Rang 2025
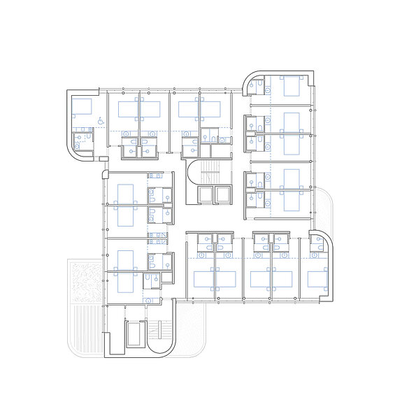
Aufstockung und Erneuerung eines 1972 von Justus Dahinden erbauten Hotels.
Anlagestiftung Turidomus, Zürich
Bauingenieur: DSP Bauingenieure, Uster

Das ursprüngliche skulpturale Prinzip eines sich windmühlenartig in die Höhe schraubenden Volumens wird mit der Aufstockung weitergeführt. Auch die Auskragungen im oberen Bereich der abgerundeten Ecktürme werden als prägendes Merkmal wieder aufgenommen. Die Erneuerung der verglasten Fassadenflächen orientiert sich an der Plastizität des originalen Bestandes und einer von Justus Dahinden in anderen Projekten verwendeten Farbpalette. Dadurch erhält die neue Fassadengestaltung eine zeitgenössische Anmutung.

 

Hotel Aarauerhof, Aarau
Hotel Aarauerhof, Aarau
Hotel Aarauerhof, Aarau Hotel Aarauerhof, Aarau
Hotel Aarauerhof, Aarau
Hotel Aarauerhof, Aarau