Instagram
Kantonsschule Zimmerberg, Au-Wädenswil

Kantonsschule Zimmerberg, Au-Wädenswil

offener Wettbewerb 2024
Neubau Kantonsschule für 1'200 Schülerinnen und Schüler. Diese bildet Teil eines vorgegebenen Gestaltungsplanes.
Baudirektion Kanton Zürich
Landschaftsarchitektur: David & von Arx, Solothurn
Bauingenieur: DSP Ingenieure, Uster

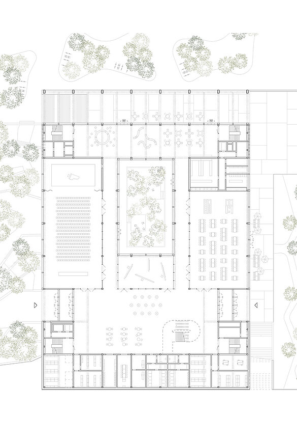
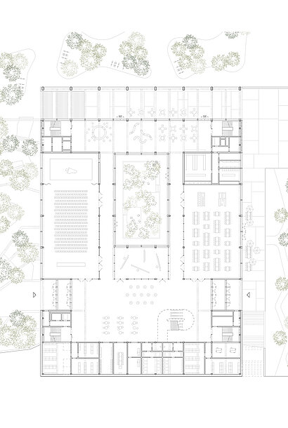
Das Schulhaus tritt als rechteckiger, auf den gemeinsamen Sockel gesetzter Baukörper in Erscheinung. Ein «Wäldchen» bildet den Auftakt einer vielfältigen, sich zum See öffnenden Aussenraumfolge. Das auf der Sockelplattform liegende Eingangsgeschoss ist als durchlässige «Belétage» mit Bezug zum geplanten Quartierpark und einer seeseitig vorgelagerten Loggia mit Freitreppe konzipiert. Ein Atrium und ein Innenhof strukturieren die Obergeschosse. Die Sporthallen sind im Sockelbau untergebracht.

Kantonsschule Zimmerberg, Au-Wädenswil
Kantonsschule Zimmerberg, Au-Wädenswil
Kantonsschule Zimmerberg, Au-Wädenswil Kantonsschule Zimmerberg, Au-Wädenswil
Kantonsschule Zimmerberg, Au-Wädenswil
Kantonsschule Zimmerberg, Au-Wädenswil Kantonsschule Zimmerberg, Au-Wädenswil
Kantonsschule Zimmerberg, Au-Wädenswil Kantonsschule Zimmerberg, Au-Wädenswil