Instagram
Neue Sternen Trotte, Würenlingen Neue Sternen Trotte, Würenlingen

Neue Sternen Trotte, Würenlingen

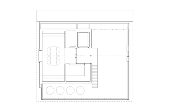
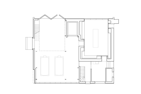
Umbau und Neugestaltung Trotte mit Vinothek
Fertigstellung 2012 
Weingut zum Sternen, Würenlingen
Ausgezeichnet mit dem Best Architects Award 2014

Form und Materialisierung orientieren sich am Bild dörflicher Scheunen. Die markante Giebelfassade und weit ausladende Vordächer erzeugen einen unverwechselbaren und dennoch vertrauten Ausdruck. An der Zugangsfassade wurde die Brettschalung aus schwarz geölter Tanne so gesägt, dass sich deren Fugen zu einem Sternenornament erweitern. Im Sensorikraum unter dem Giebel ist die Konzentration auf den Wein gerichtet. Die schwarze Raumhülle tritt zurück und der weiss glänzende Tisch bildet die Bühne für den Wein.

Publikationen

Neue Sternen Trotte, Würenlingen
Neue Sternen Trotte, Würenlingen
Neue Sternen Trotte, Würenlingen
Neue Sternen Trotte, Würenlingen
Neue Sternen Trotte, Würenlingen
Neue Sternen Trotte, Würenlingen
Neue Sternen Trotte, Würenlingen Neue Sternen Trotte, Würenlingen
Neue Sternen Trotte, Würenlingen
Neue Sternen Trotte, Würenlingen Neue Sternen Trotte, Würenlingen
Neue Sternen Trotte, Würenlingen Neue Sternen Trotte, Würenlingen
Neue Sternen Trotte, Würenlingen Neue Sternen Trotte, Würenlingen